5-Zimmer-Eigentumswohnung in

71397 Leutenbach-Nellmersbach

 

Objektbeschreibung

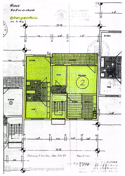
Zum Verkauf steht eine großzügige 5-Zimmer-Eigentumswohnung im Obergeschoss eines gepflegten 3-Familienhauses, das ca. 1970 in solider Massivbauweise errichtet wurde. Die Wohnung bietet mit 101,38 m² Wohnfläche einen durchdachten Grundriss und eignet sich ideal für Familien oder Paare mit Platzbedarf.

 

Die Einheit ist leerstehend und kann sofort bezogen werden.

 

Lage

Die Wohnung befindet sich in ruhiger Wohnlage, nur ca. 200 m vom Ortszentrum entfernt. Nellmersbach überzeugt durch eine sehr gute Infrastruktur u.a. mit Kindergarten, Grundschule, Arzt, Zahnarzt, Einkaufsmöglichkeiten und Dienstleistungsangeboten, Freizeit- und Sportmöglichkeiten sowie einer hervorragenden Verkehrsanbindung u.a. Bushaltestellen und S-Bahn-Haltestelle (S3) sowie Nähe zur B14.

 

Ausstattung

Die Wohnung verfügt über eine komfortable Ausstattung: - Fußbodenheizung

- Wohnzimmer - Esszimmer - Schlafzimmer - Zwei Kinderzimmer - Küche mit Einbauküche - Badezimmer - Separates WC - Garderobe und Flur - Balkon mit Markise.

 

Zusätzlich gehören zur Wohnung: Abstellraum im Untergeschoss und PKW-Stellplatz

 

Modernisierungen

Das Gebäude sowie die Wohnung wurden kontinuierlich modernisiert: Bodenfliesen (1988), Holz-Alu-Fenster (ca. 1988), Dachrinnen (1994), Bad (1996), WC (2009), Dacheindeckung (2010), Treppenhaus (2012), Balkon (2017), Wasserleitungen im UG (2018), Haus- und Garagentüren (2023), Fassadenanstrich (2025).

 

Wirtschaftliche Eckdaten

Monatliches Hausgeld: 200,00 €

 

Energieausweis

Bedarfsausweis vom 05.05.2022

Endenergiebedarf: 198,53 kWh/(m²·a)

Energieeffizienzklasse: F

Energieträger: Strom

Baujahr Wärmeerzeuger: 2018

Baujahr Gebäude: 1970

 

Kaufpreis

258.000,00 €

 

Provision

Die Käuferprovision beträgt 3,57 % inkl. MwSt. aus dem Kaufpreis und wird nach Abschluss des notariellen Kaufvertrags fällig.

 

Sonstiges

Alle Angaben beruhen auf den Informationen des Eigentümers bzw. auf Bauunterlagen. Für deren Richtigkeit wird trotz sorgfältiger Prüfung keine Haftung übernommen.

 

Fotos

Lageplan, Grundrisse, Wohnflächenberechnung

Wir bieten Ihnen:

  • Immobilien
  • Erbabwicklung
  • Testamentsvollstreckung
  • Freiwillige Versteigerungen

Sie haben Fragen?

Wenden Sie sich direkt an uns:

Tel.:      +49 7191 5 88 99

E-Mail:  info@beck-immobilien.de

Druckversion | Sitemap
© Bernd Beck Immobilien